| 交通機関 | JR津軽線 / 油川駅 徒歩3分 |
|---|---|
| 周辺施設 | ファミリーマート青森油川店:300m ・ 油川ふるさと海岸海水浴場:550m |
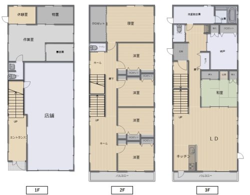
| 間取 | 6SLDK |
| 詳細間取 | 6LDK (和 6 洋 6・6・6・6・10 LDK 18) |
| 建物構造 | 鉄骨造 |
| 築年月 | 2003年4月 |
| 駐車場 | 3台可 |
| 用途地域 | 第二種中高層住居専用 |
| 土地権利 | 所有権 |
| 国土法届 | 不要 |
| 地目 | 宅地 |
| 地勢 | 平坦 |
| 都市計画 | |
| 接道状況 | 南東 6.5m 公道 接面9.5m |
| 学区 | 油川小学校(760m)・油川中学校(450m) |
| 引渡し | 相談 |
| 現況 | 空き家 |
| 建ぺい率/容積率 | 60% / 200% |
| 法令上の制限 | |
| 取引態様 | 仲介 |
| 設備 | バス(有 シャワー有 ) トイレ(洋式 独立 水洗) 上水道設備(公営) 下水道設備 洗面化粧台(独立) 下駄箱 物置 二重サッシ |
| 備考 | ◆任意売却のため債権者の抹消同意が必要です。 ◆売主の契約不適合責任が免責となります。 ◆事前予約で内覧できます! |